Avantage 2 chambres
Notre modèle Avantage est adaptable à tous les budgets. Simplicité et sobriété sont réunies dans ce modèle. Elle se décline en 2, 3 ou 4 chambres pour convenir à votre mode vie. Elle peut être proposée avec un toit plat pour plus de modernité.
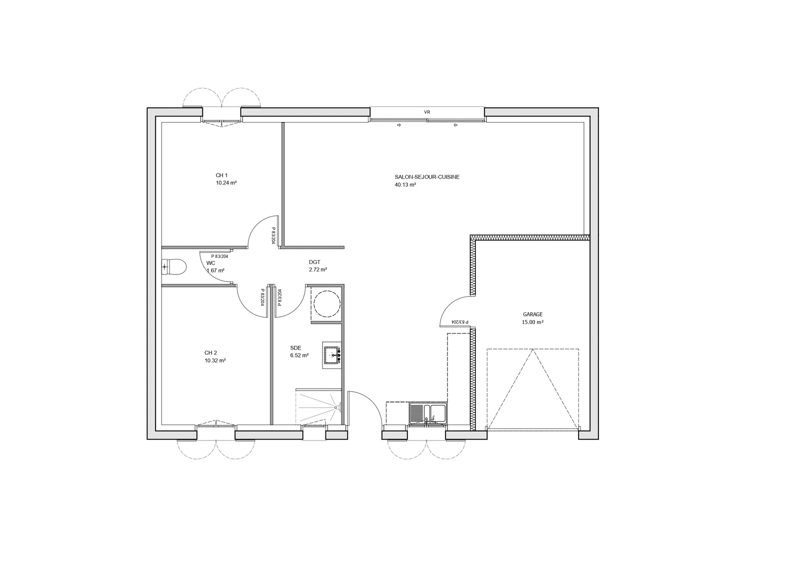
Surface habitable :
71.60
m²
Surface annexe:
15
m²
Chambres:
2
Salle de bain :
1
Cuisine, salon, séjour :
41.06
m²
Toit terrasse:
Non
Chauffage:
Poêle à granulés
Garage:
Oui
Format / style:
Traditionnel
Plan
Configurateur
Configurateur
à partir de

