Inès
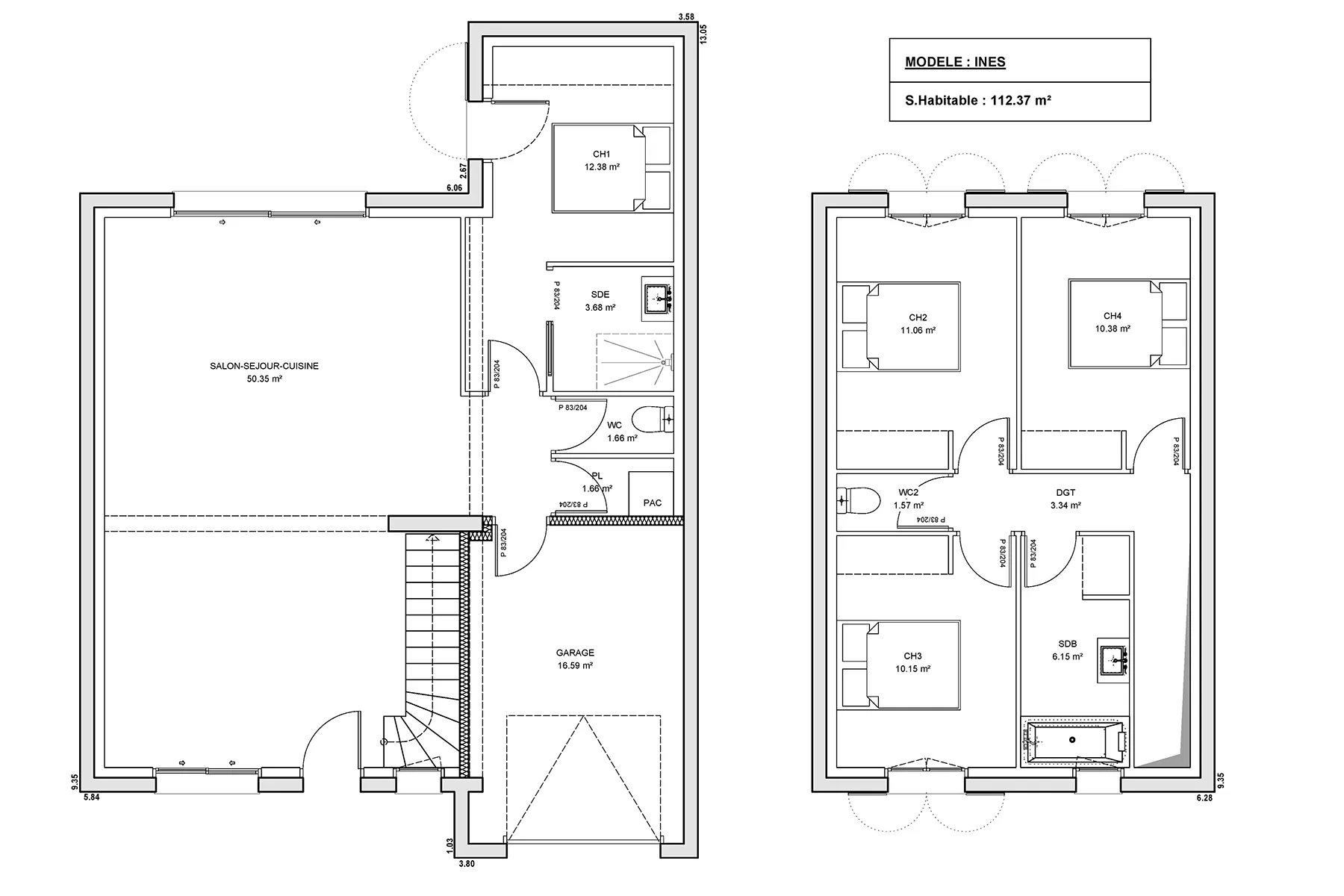
Ines, l’ étage malin 4CH de 112m² habitables avec une faible emprise au sol qui s’adapte donc sur de nombreux terrains. Sa suite parentale au rez-de -chaussée permettra une accessibilité totale et correspondra à tous ! Son architecture compacte mais néanmoins élégante limitera le surcoût que représente les modèles à étages. Son atout suprême, un salon séjour cuisine de 50m² !
Surface habitable :
112,37
m²
Surface annexe:
16,59
m²
Chambres:
4
Salle de bain :
2
Cuisine, salon, séjour :
50,35
m²
Toit terrasse:
Non
Chauffage:
Pompe à chaleur air/air
Garage:
Oui
Format / style:
Étage urbain
Plan
Configurateur
Configurateur
- Aucune prestation disponible.
à partir de


